NSE斗式提升机产品介绍:
NSE系列斗式提升机适用于提升粉状和小颗粒状物料,如:水泥、煤粉、破碎后较细的矿石等,这类输送机广泛用于输送量较大的粉状和小颗粒状物料的提升。
NSE系列板链式提升机共有九个基本型号:NSE100、NSE200、NSE300、NSE400、NSE500、NSE600、NSE700、NSE800、NSE1000,每种型号可根据输送物料的不同,选择不同的提升速度,最大提升速度70m/min。我公司还可根据用户要求设计各基本型号之间的扩展型号。

一、提升机的特点:
1、输送能力大:该系列提升机是国内提升机中相近横截面尺寸输送量最大的提升机,提升量为100~1000m3/h。
2、提升范围广:这类提升机对物料的种类、特性要求少。不但能提升一般粉状、小颗粒状物料,而且可提升磨琢性较大的物料。要求物料温度≤200℃。
3、驱动功率小:采用流入式喂料、诱导式卸料、大容量的料斗密集型布置。在物料提升时几乎无回料和挖料现象,因此无效功率少,比环链提升机节省功率约30%。
4、使用寿命长:提升机的喂料采用流入式,无需用斗挖料,材料之间很少发生挤压和碰撞现象。本机在设计时保证物料在喂料、提升机卸料时少有撒落,减少了机械磨损,采用板链式高强度耐磨输送链,大大延长了输送链和料斗的使用寿命。正常使用下,输送链使用寿命超过3年。
5、提升高度高:该提升机运行平稳,并且采用板链式高强度耐磨输送链,因此可达到较高的提升高度。在额定输送量下,提升高度≤50m。
6、密封性好,环境污染少。
7、运行可靠性好:先进的设计原理和加工方法,保证了整机运行的可靠性,无故障时间超过2万小时。
8、操作、维护方便,易损件少。
9、结构刚度好,精度高:机壳经压型焊接后,刚度好且外观漂亮。
10、综合成本低:由于节约能耗和维护少,使用成本低。
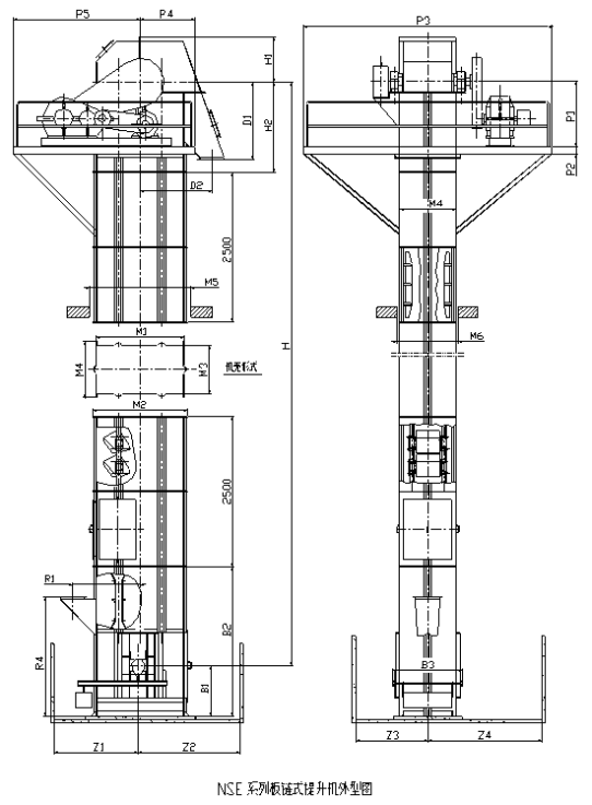
二、NSE系列斗式提升机外形尺寸图

三、NSE斗式提升机的技术规范:
型号 | 最大提升量m3/h | 料斗容积m3/m | 运行速度m/min | 物料最大块度(mm) | ||||
占百分比% | ||||||||
10 | 25 | 50 | 75 | 100 | ||||
NSE100 | 170 | 0.073 | 66 | 35 | 30 | 20 | 15 | 10 |
NSE200 | 220 | 0.097 | 66 | 35 | 30 | 20 | 15 | 10 |
NSE300 | 300 | 0.121 | 66 | 35 | 30 | 20 | 15 | 10 |
NSE400 | 400 | 0.157 | 66 | 50 | 40 | 30 | 25 | 20 |
NSE500 | 500 | 0.21 | 66 | 50 | 40 | 30 | 25 | 20 |
NSE600 | 600 | 0.24 | 66 | 50 | 40 | 30 | 25 | 20 |
NSE700 | 700 | 0.28 | 66 | 65 | 60 | 40 | 35 | 30 |
NSE800 | 800 | 0.32 | 66 | 65 | 60 | 40 | 35 | 30 |
NSE1000 | 1000 | 0.391 | 66 | 65 | 60 | 40 | 35 | 30 |